North Rhine-Westphalia, Germany
2019–24
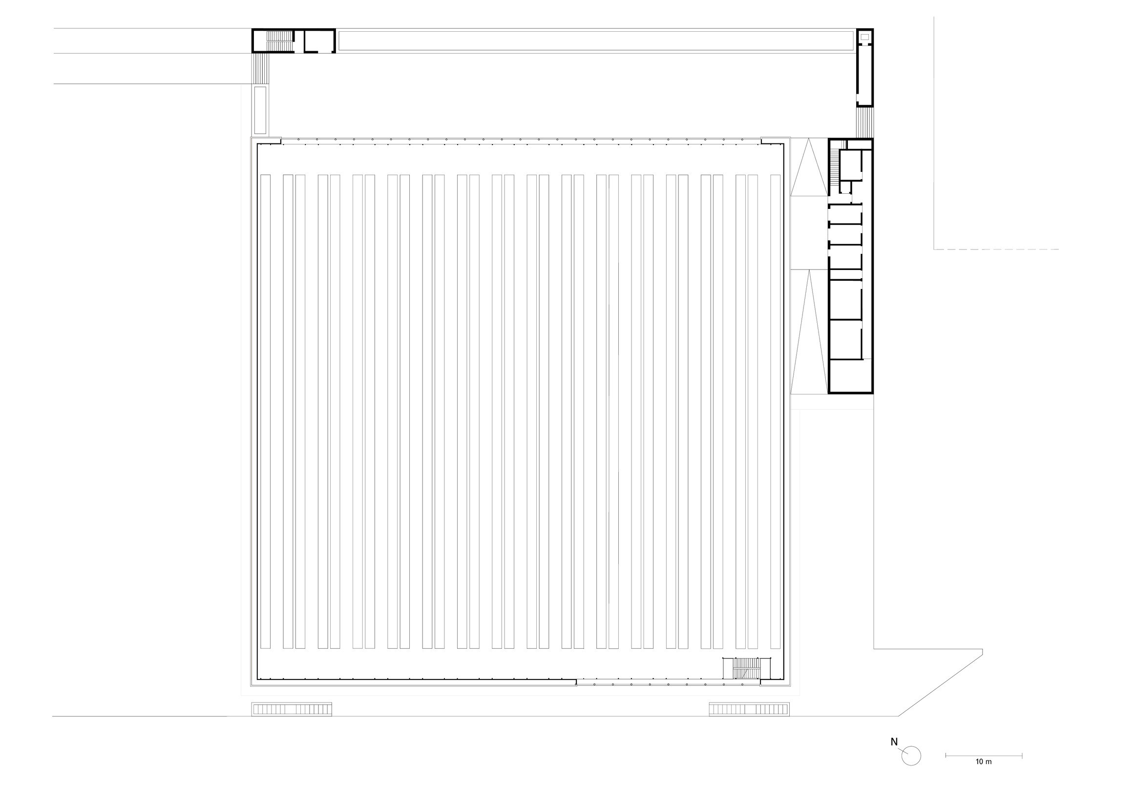
In recent years, the German clothing retailer Ernsting’s family has expanded its headquarters into a “working campus” with three new additions: the Creative Centre, a garden pavilion, and an automated warehouse (AKL). Set within a landscaped park designed by Wirtz International, the new buildings complement the existing headquarters, including the Service Centre completed in 2001 by David Chipperfield Architects, as well as logistics buildings from the 1980s and 1990s.
Ernsting Service Centre completed in 2001
1 Service Centre
2 Creative Centre
3 Pavilion
4 AKL
The Creative Centre transforms a former dispatch warehouse, extending and adapting the existing structure to create additional, generous office space. The intervention draws on the architectural language of the adjacent Service Centre, with deep loggias, retractable sunshades, and continuous floor-to-ceiling ribbon windows defining the façade. A load bearing, in-situ concrete façade enables for column-free interiors within the extension, allowing for flexible workspaces. The original hall, with its steel structure and saw-tooth roof, is retained and reinterpreted, preserving its industrial character while adapting to the requirements of a contemporary work environment.
At the heart of the campus, the new pavilion forms a link between the Service Centre and the Creative Centre. Embedded within the landscape, the building provides a contemplative setting for meetings and workshops. Its monolithic concrete walls reference the materiality of the neighbouring buildings, while establishing a distinct and self-contained presence within the park.
To the south, the AKL building responds to the logistical demands of a growing e-commerce operation. With a footprint of 80 by 85 metres, the building is defined by a clear and rigorous form. The high-bay racking system serves as the primary structure. It supports the façade as well as the green roof with its integrated photovoltaic panels, combining structure and function into a one cohesive form. Clad in large-format, angled glass fibre reinforced cement panels, visually resting on projecting battens, the façade evokes traditional timber stacking systems.